Design Project Phase

1. Meeting & Contract Signing

Our first meeting is free (in person or online). This is where we get to know each other. We explain how the entire process works, step by step, and show you examples of past projects. Before the meeting, you’ll fill out a short questionnaire that helps us understand your goals and preferences. After that, we sign a contract, and you make a 30% prepayment for the design project (based on $45 per square meter).

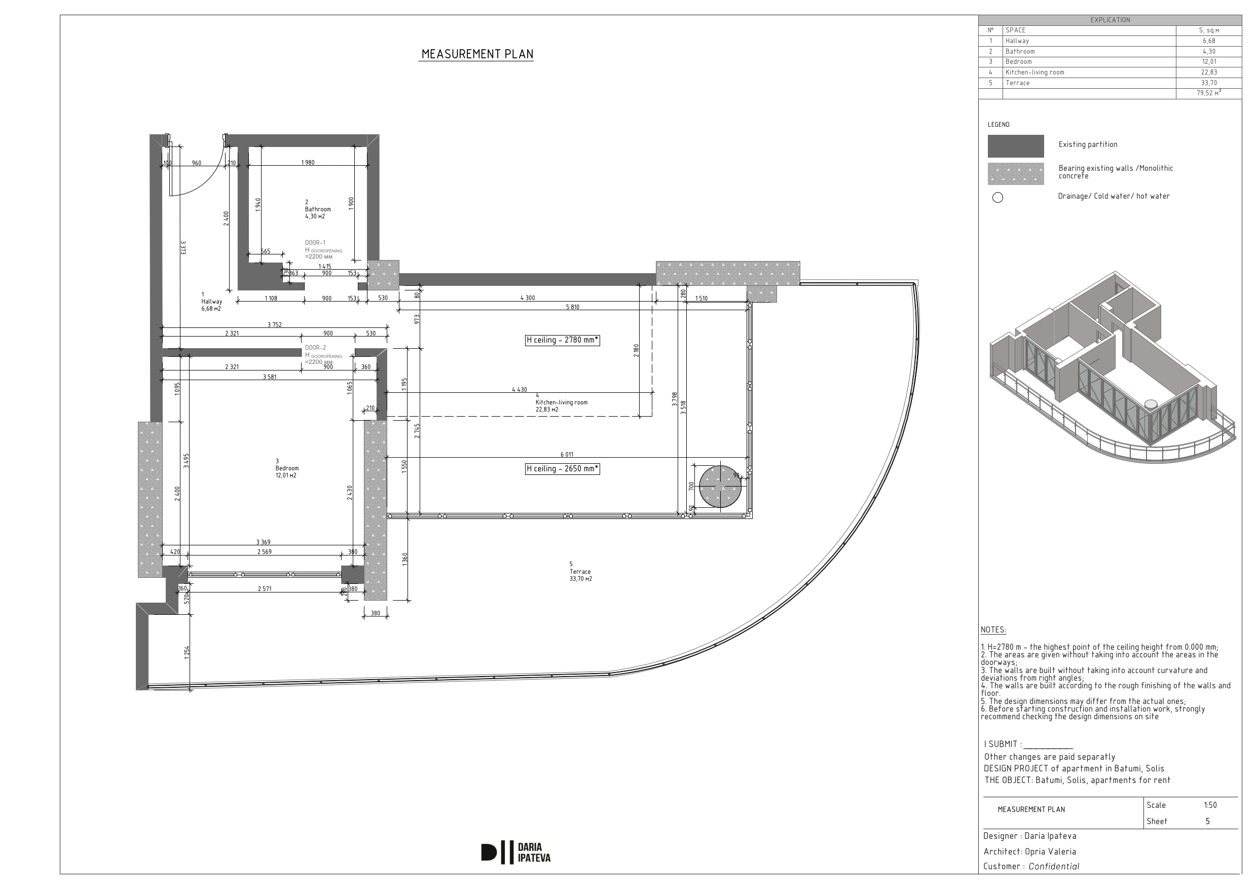
2. Measured Survey

Within 2–3 working days after the contract is signed, our specialist visits the apartment to take accurate measurements and photos. We then create a measurement plan and send it to you.

3. Planning Options & Interior Design Proposal

5–7 working days after the measured survey, we send you 2–3 layout options with furniture placement. These are based on your questionnaire, apartment layout, ergonomics, and local regulations. Once you approve the floor plan, you make the next 20% payment.

4. Interior Collages

After the layout is approved, we create 3D interior collages for each room (entryway, living areas, bathrooms). These show the style, mood, and color palette of your future apartment. Each collage includes real furniture and finish selections. Once you approve the collages, you make the next 30% payment.

5. Technical Drawings & Construction Plans

Next, we prepare the working documentation for construction. These technical drawings include plumbing, electrical, heating layouts, and more — everything our team needs to bring your project to life. After you approve the final set of technical drawings, you make the last 20% payment.

6. Materials Specification (Bill of Quantities)

Once all drawings are approved, we move on to checking and finalizing every detail. We create a full specification sheet (in Excel format) listing everything selected for your project — finishes, furniture, lighting, plumbing fixtures, appliances, décor, and more. This document ensures full clarity and prepares us for the renovation phase.

Once the design project phase is complete, we begin the renovation phase

Renovation Phase

1. Project & Budget Documentation

The renovation phase begins with the preparation of detailed documentation: a cost sheet for construction phase (materials and work), and separate budgets for furniture, appliances, and décor.

We also provide a clear payment schedule outlining all upcoming payment dates and amounts. Once everything is approved, you make the first payment — and we begin the renovation work.

2. Construction & Installation Works

After receiving the first payment, we purchase all required materials and start construction. The work is closely monitored: the designer provides on-site supervision to ensure aesthetic and functional alignment with the project, and the site manager oversees technical compliance.

Each week, we send you photos and videos of the progress in your dedicated WhatsApp or Telegram project chat (whichever is more convenient for you).

3. Furnishing & Decoration

Once construction is complete and fully paid for, we begin furnishing the apartment according to the approved design visuals and materials specification. We handle full turnkey setup: ordering built-in furniture, lighting, plumbing fixtures, décor, and sourcing alternatives when needed (e.g. if items are unavailable in Batumi, or to find alternatives to stay within budget).

We take care of any product reclamations, assemble and arrange all furniture, hang curtains, and place decorative items.

4. Photoshoot & Handover for Rental

After all furnishings and décor are installed and fully paid for, we do a deep clean of the apartment and organize a professional photoshoot. These high-quality images are used for listing your property on rental platforms. We then hand the apartment over for ongoing rental management.